Skip to content
Free Shipping Orders $250+
Free Shipping Orders $250+
by M&W

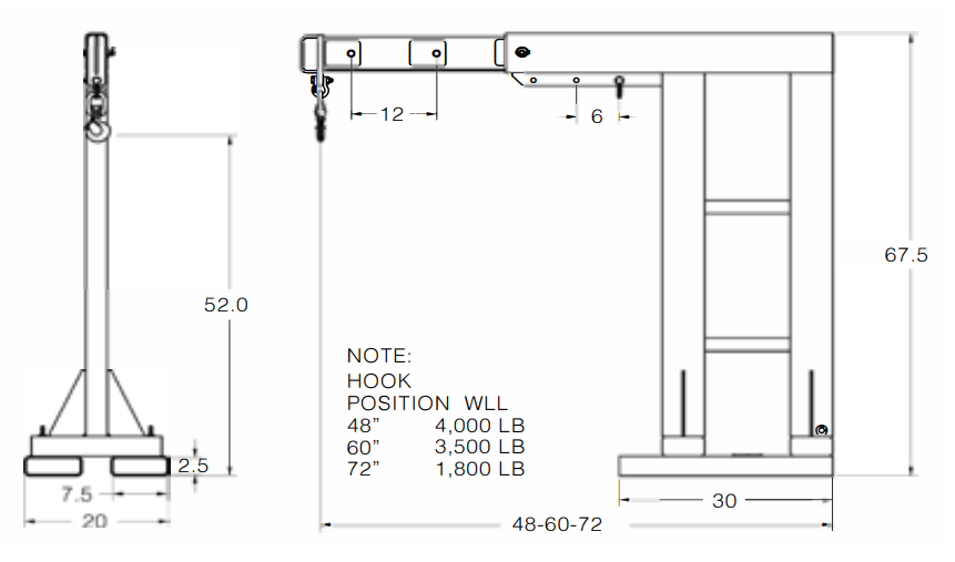
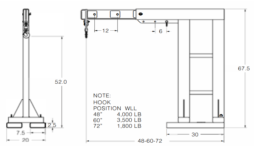
Adjustable Reach Over Boom W/ Swivel Hook (16055)

Original price $3,787.01 - Original price $3,787.01
Original price
$3,787.01
$3,787.01 - $3,787.01
Current price $3,787.01
PN: M&W-16055

MPN: 16055

  • Part Number: 16055
  • Weight: 375